Denah Terminal 2: Panduan Lengkap Anda

M.Myconferencesuite 146 views
Denah Terminal 2: Panduan Lengkap Anda

Denah Terminal 2: Panduan Lengkap Anda

Hey guys, pernah gak sih kalian bingung pas pertama kali datang ke sebuah terminal baru? Apalagi kalau terminalnya segede Terminal 2 , wah bisa pusing tujuh keliling! Nah, buat kalian yang lagi cari info soal denah Terminal 2 , kalian datang ke tempat yang tepat. Artikel ini bakal jadi panduan lengkap kalian biar gak nyasar dan bisa efisien pas mau cari apa aja di sana. Yuk, kita bedah tuntas bareng-bareng!

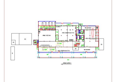
Memahami Tata Letak Terminal 2: Kunci Perjalanan Lancar

Oke, guys, pertama-tama kita perlu banget nih paham tata letak Terminal 2 . Kenapa penting? Gampang aja, kalau kita udah tau denahnya, perjalanan kita bakal jadi jauh lebih lancar. Gak perlu lagi tuh bolak-balik nanya orang, gak perlu lagi takut ketinggalan pesawat atau bus. Terminal modern kayak Terminal 2 itu biasanya didesain dengan sangat ergonomis dan fungsional . Ada area kedatangan, area keberangkatan, loket tiket, ruang tunggu, restoran, toilet, mushola, toko-toko, sampai area parkir. Semuanya tuh ada di tempatnya masing-masing dan biasanya dikelompokkan biar gampang dicari. Coba bayangin deh, kalau semua terpisah acak-acakan, pasti repot banget kan? Makanya, sebelum kalian berangkat, luangin waktu sebentar buat pelajari denah Terminal 2 . Ini bisa kalian dapatkan dari website resmi terminal, brosur yang ada di terminal itu sendiri, atau bahkan dari aplikasi peta di smartphone kalian. Semakin familiar kalian dengan denah ini, semakin percaya diri kalian nanti pas bergerak di sana. Jangan remehkan kekuatan informasi, guys! Apalagi kalau kalian bawa barang banyak atau bepergian sama keluarga, punya gambaran jelas soal denah bakal menghemat waktu dan energi kalian banget. Ingat, perjalanan yang nyaman itu dimulai dari persiapan yang matang, dan mempelajari denah adalah salah satu langkah krusial dalam persiapan itu. Jadi, anggap aja denah ini sebagai peta harta karun kalian untuk menaklukkan Terminal 2!

Area Keberangkatan: Titik Awal Petualanganmu

Nah, kalau kalian datang ke Terminal 2 untuk berangkat, berarti kalian bakal banyak berinteraksi sama area keberangkatan . Area ini tuh ibarat jantungnya terminal buat yang mau pergi. Di sinilah kalian bakal melakukan proses check-in , menyerahkan bagasi, dan kemudian menunggu di ruang tunggu sebelum naik ke pesawat atau bus. Biasanya, area keberangkatan itu luas banget dan dibagi lagi berdasarkan maskapai atau tujuan. Jadi, penting banget buat kalian cek nomor penerbangan atau tujuan kalian di layar informasi yang terpampang jelas di langit-langit atau dinding terminal. Layar ini bakal nunjukkin di gate mana kalian harus check-in dan di terminal mana penerbangan kalian berada. Jangan sampai salah gate ya, guys! Setelah check-in, kalian akan diarahkan ke area pemeriksaan keamanan (security check). Di sini, kalian harus siap-siap untuk melewati metal detector dan sinar-X untuk barang bawaan kalian. Patuhi instruksi petugas ya, biar prosesnya lancar. Nah, setelah lolos dari pemeriksaan keamanan, barulah kalian masuk ke area ruang tunggu. Di sini kalian bisa santai sejenak, cari makanan atau minuman, atau sekadar lihat-lihat toko souvenir. Ruang tunggu biasanya juga dilengkapi dengan toilet, mushola, dan kadang ada juga smoking area. Perhatikan juga pengumuman yang disiarkan di ruang tunggu, karena bisa jadi ada perubahan jadwal atau gate. Fleksibilitas dan kesadaran akan informasi adalah kunci utama di area keberangkatan ini. Jangan ragu buat bertanya ke petugas kalau ada yang bikin kalian bingung. Mereka siap membantu kok! So, area keberangkatan Terminal 2 ini adalah tempat kalian memulai semua petualangan. Pastikan kalian memahami alur pergerakannya agar semuanya berjalan sesuai rencana. Nggak mau kan datang mepet terus panik nyari gate? Yuk, jadi traveler yang cerdas!

Fasilitas Penting di Area Keberangkatan

Di dalam area keberangkatan Terminal 2 , ada beberapa fasilitas penting yang wajib banget kalian ketahui. Pertama, loket tiket . Meskipun sekarang banyak yang beli tiket online, tapi loket ini masih penting banget buat yang mau beli tiket mendadak, ubah jadwal, atau sekadar tanya-tanya informasi. Biasanya loket ini tersebar di beberapa titik strategis. Kedua, area check-in counter . Setiap maskapai atau perusahaan bus punya counter-nya sendiri. Perhatikan papan informasi untuk menemukan counter maskapai atau tujuan kalian. Ketiga, pos pemeriksaan keamanan (security check point) . Penting banget untuk tahu apa aja yang boleh dan tidak boleh dibawa. Biasanya ada larangan untuk cairan dalam jumlah besar, benda tajam, dan barang-barang berbahaya lainnya. Keempat, ruang tunggu (waiting lounge) . Ini tempat kalian buat bersantai sebelum naik. Seringkali dilengkapi dengan kursi yang nyaman, colokan listrik buat nge-charge gadget, dan Wi-Fi gratis. Kelima, restoran dan kafe . Buat kalian yang lapar sebelum berangkat, banyak pilihan makanan dari yang ringan sampai berat. Keenam, toilet dan mushola . Fasilitas dasar yang krusial banget. Pastikan kalian tahu lokasinya biar gak kelabakan pas butuh. Ketujuh, toko souvenir dan kebutuhan travel . Cocok buat kalian yang mau beli oleh-oleh atau barang-barang yang ketinggalan kayak bantal leher atau charger. Kedelapan, pusat informasi (information desk) . Kalau ada apa-apa atau bingung, langsung aja samperin pusat informasi. Petugas di sana siap banget bantu kalian. Terakhir, tapi gak kalah penting, papan informasi penerbangan/keberangkatan . Ini wajib banget kalian perhatikan secara berkala. Di situ tertera status penerbangan, nomor gate, dan waktu boarding. Pokoknya, dengan mengetahui denah dan fasilitas ini, kalian bakal merasa lebih siap dan tenang saat berada di area keberangkatan Terminal 2. Kenyamanan dan efisiensi adalah dua hal yang bisa kalian dapatkan kalau kalian benar-benar memanfaatkan informasi yang ada.

Area Kedatangan: Sambut Pintu Pulang Anda

Nah, sekarang giliran kita bahas area kedatangan Terminal 2 . Ini adalah bagian terminal yang menyambut kalian setelah perjalanan usai. Entah itu baru mendarat dari pesawat atau turun dari bus, di sinilah kalian akan keluar. Sama seperti area keberangkatan, area kedatangan ini juga didesain biar memudahkan penumpang . Begitu kalian keluar dari pesawat atau bus, biasanya kalian akan diarahkan ke area pengambilan bagasi (jika ada). Di sini, kalian perlu menunggu dengan sabar sampai bagasi kalian muncul di ban berjalan. Sambil menunggu, kalian bisa sambil cari informasi tentang transportasi lanjutan ke kota atau rumah kalian. Setelah mengambil bagasi, kalian akan masuk ke area kedatangan publik. Di sini, biasanya sudah banyak keluarga atau teman yang menunggu. Suasana haru dan bahagia seringkali terasa di area ini. Di area kedatangan publik ini juga biasanya terdapat beberapa fasilitas penting seperti pusat informasi , loket taksi atau rental mobil , area penjemputan , dan kadang ada juga toko atau kafe kecil . Penting buat kalian yang dijemput untuk menentukan titik pertemuan yang jelas dengan penjemput kalian. Misalnya, “aku tunggu di dekat patung X” atau “aku ada di depan pintu keluar Y”. Ini biar gak saling bingung dan terpisah. Kalau kalian naik transportasi umum, biasanya ada shelter bus atau halte taksi yang lokasinya sudah ditandai dengan jelas di denah. Terminal 2 , sebagai terminal modern, pasti sudah dilengkapi dengan sistem penandaan yang baik. Jadi, sekali lagi, pelajari denah itu penting, bahkan saat kalian baru mau mendarat pun. Ini akan membantu kalian menghemat waktu dan langsung menuju transportasi yang kalian tuju tanpa perlu tersesat. Area kedatangan ini adalah gerbang penutup perjalanan kalian, pastikan keluar dari terminal dengan mudah dan aman ya, guys!

Tips Navigasi di Area Kedatangan

Guys, biar nggak bingung pas tiba di area kedatangan Terminal 2 , ada beberapa tips navigasi nih yang bisa kalian terapin. Pertama, selalu perhatikan papan petunjuk . Biasanya ada petunjuk arah yang jelas banget menuju area pengambilan bagasi , pintu keluar , transportasi umum , dan taksi . Ikutin aja petunjuknya. Kedua, kalau kalian dijemput, komunikasikan titik penjemputan yang spesifik . Daripada bilang “aku udah sampai”, mending bilang “aku tunggu di dekat pos polisi pintu keluar A”. Ini biar penjemput kalian nggak salah cari. Ketiga, kenali opsi transportasi yang tersedia . Di Terminal 2, kemungkinan besar ada banyak pilihan, mulai dari taksi resmi, layanan ride-sharing, bus kota, sampai layanan antar-jemput bandara/terminal. Cari tahu dulu opsi mana yang paling sesuai dengan tujuan dan budget kalian. Keempat, kalau kalian bawa barang banyak, cari tahu lokasi troli bagasi . Biasanya ada di dekat pintu masuk atau area pengambilan bagasi. Kelima, manfaatkan peta terminal . Kalau tersedia, ambil peta atau lihat peta digital yang ada. Ini bakal jadi ‘senjata’ utama kalian buat orientasi. Keenam, kalau ada masalah atau bingung, jangan ragu tanya petugas . Petugas informasi atau petugas keamanan biasanya siap sedia membantu. Mereka tahu banget seluk-beluk terminal. Ketujuh, tetap tenang dan sabar . Terutama kalau kalian baru pertama kali datang, wajar kalau sedikit bingung. Tarik napas, lihat denah lagi, dan ikuti alurnya. Dengan persiapan navigasi yang baik, kalian bisa keluar dari Terminal 2 dengan nyaman dan efisien , siap melanjutkan perjalanan ke destinasi akhir kalian. Ingat, navigasi yang baik adalah kunci kepulangan yang mulus!

Fasilitas Pendukung di Terminal 2: Lebih dari Sekadar Transportasi

Siapa bilang terminal cuma tempat buat naik turun penumpang? Di Terminal 2 , kalian bakal nemuin banyak banget fasilitas pendukung yang bikin pengalaman kalian jadi lebih nyaman dan menyenangkan. Ini yang bikin terminal modern tuh beda, guys! Mulai dari pilihan kuliner yang beragam, ada food court yang nyediain makanan lokal sampai internasional, ada juga kafe-kafe lucu buat nongkrong sambil nungguin bus atau pesawat. Cocok banget buat kalian yang punya waktu luang lebih. Terus, buat kalian yang doyan belanja, jangan khawatir! Di Terminal 2 juga banyak banget toko-toko , mulai dari toko buku, toko pakaian, sampai toko oleh-oleh khas daerah. Lumayan kan, bisa sambil jalan-jalan atau beli necessities yang ketinggalan. Buat yang bawa anak kecil, biasanya ada juga lho area bermain anak biar mereka nggak bosen nunggu. Wah, keren banget kan ? Dan tentu saja, fasilitas paling krusial yang nggak boleh ketinggalan: toilet yang bersih dan mushola yang nyaman. Ini penting banget buat kenyamanan ibadah dan kebersihan diri. Ada juga layanan seperti money changer kalau kalian butuh tukar uang, ATM center dengan berbagai pilihan bank, bahkan kadang ada pojok informasi turis buat kalian yang baru datang dan butuh panduan wisata. Oh ya, jangan lupa Wi-Fi gratis ! Ini udah jadi kebutuhan pokok banget di era sekarang, kan? Bisa buat update status, kirim kabar ke keluarga, atau sekadar browsing. Keberadaan fasilitas pendukung ini bener-bener bikin Terminal 2 bukan cuma tempat transit, tapi juga bisa jadi tempat singgah yang nyaman. Jadi, selain fokus ke denah pergerakan, jangan lupa juga buat eksplorasi fasilitas-fasilitas keren yang ada di sini ya, guys! Dijamin perjalanan kalian bakal makin berkesan.

Tips Memaksimalkan Fasilitas Terminal 2

Biar kalian bisa maksimalkan semua fasilitas keren yang ada di Terminal 2 , nih ada beberapa tips jitu buat kalian, guys! Pertama, jadwalkan waktu kedatangan lebih awal . Ini penting banget biar kalian punya cukup waktu buat eksplorasi, nggak cuma buru-buru kejar jadwal. Misalnya, kalau penerbangan kalian jam 7 malam, coba datang jam 4 sore. Lumayan kan, bisa makan siang dulu, cari oleh-oleh, atau sekadar santai di kafe. Kedua, manfaatkan Wi-Fi gratis . Bawa power bank atau cari colokan listrik yang banyak tersedia. Gunakan Wi-Fi buat cari informasi tambahan, hubungin orang, atau sekadar hiburan. Ketiga, cicipi kuliner lokal . Jangan cuma makan makanan yang itu-itu aja. Cari tahu apa aja jajanan atau makanan khas yang ada di food court atau restoran Terminal 2. Ini bisa jadi pengalaman kuliner unik kalian sebelum berangkat. Keempat, cek promo di toko-toko . Seringkali toko di terminal ngadain diskon atau promo menarik. Siapa tahu kalian nemu barang bagus dengan harga miring. Kelima, gunakan fasilitas yang menunjang kenyamanan . Kalau kalian bawa anak kecil, cari area bermainnya. Kalau butuh istirahat, cari pojok yang lebih tenang. Kalau mau ibadah, pastikan tahu lokasi mushola. Keenam, simpan nomor penting . Simpan nomor pusat informasi, nomor taksi, atau nomor darurat lainnya yang mungkin tertera di papan informasi. Persiapan ekstra ini bisa sangat berguna. Ketujuh, pantau pengumuman . Kadang ada informasi penting atau bahkan undian berhadiah yang diumumkan lho! Jadi, jangan cuek sama pengumuman yang kedengeran. Dengan memanfaatkan semua fasilitas ini secara optimal, perjalanan kalian lewat Terminal 2 pasti bakal lebih berkesan dan nggak bikin stres. Enjoy your trip, guys !

Kesimpulan: Denah Terminal 2 adalah Kunci Perjalanan Anda

Jadi, guys, dari semua pembahasan di atas, kita bisa tarik kesimpulan penting nih: denah Terminal 2 itu beneran kunci utama buat kelancaran perjalanan kalian. Gak peduli kalian mau berangkat, datang, atau sekadar transit, dengan memahami tata letak terminal, kalian bisa menghemat banyak waktu, tenaga, dan yang paling penting, mengurangi stres. Kita udah bahas mulai dari area keberangkatan yang penuh kesibukan check-in dan boarding, sampai area kedatangan yang jadi gerbang penyambutan. Kita juga udah singgung pentingnya fasilitas pendukung yang bikin terminal jadi lebih nyaman, mulai dari tempat makan, belanja, sampai area istirahat. Intinya, jangan pernah meremehkan kekuatan informasi, terutama denah. Luangkan sedikit waktu sebelum berangkat buat mempelajari peta Terminal 2 . Ini adalah investasi kecil yang bakal ngasih imbalan besar berupa perjalanan yang mulus dan menyenangkan. Jadi, lain kali kalau kalian mau ke Terminal 2, pastikan kalian udah bekal pengetahuan soal denahnya . Selamat menikmati perjalanan kalian, guys! Semoga informasi ini bermanfaat ya!